aktuell
info
team
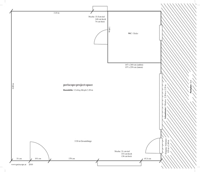
raumplan
covid 19
project:space
2025
welcome to my land of cream
Unstoppable Yesterdays
Rubber Souls
Sedimental Birdsongs
Aufmerksamkeit für Neuanfänger*innen
EGO-TU
2024
The Longboardharp Project
an itch I have to scratch
this is what wellness sounds like
Wayfarer
bodily
Disappear in hidden dreams
2023
Poetics of Bits
Fast Decay and Future Archeologies
Cope not Perish
The Signs of Hope
A JOURNEY TO THE SEA
hunting shadows and moving rocks
2022
Small Talk #10: Foraging Weather
Spuni Cuni digitalisieren?
AD ASTRA
HABITAT
O.T. 1130
Welt und Müll
What else?
2021
Plan D
Tentechular Dis:Pleasures
Kontrastraum
Seeking the Truth
Skin in the Game!
AS OF NOW
expired predictions
Tableau Vivant
2020
Ich bin im Bilde
This is beautiful!
if you like you can touch
on screens
Sleep is ...
Expanded Space
Such Softening Lock
2019
fil à fil II
Trace Path
Die Spur der Zeit
Step By Step To The Dailyness Alley
Keusch
Save it for a rainy day
I am spoiled by you
no them, only us
2018
MAG Jedermann
Shooting Clouds
MIRAGE MIRAGE
Shifting Point(s)
Infrasonic 17-19 Hz
Keimzelle
Komplett fast
Alice und Bob
2017
fern nah gleich anders
Nordwand
Raum und Klang
In Transition
Urbane Utopien
Be my Guest - Makeover
Future Rearview
Soft Skills
2016
Von Jäger_ und Sammler_innen
Stadtteile
zyttl
Akte A - Z
Urban Rainbow
Der Schatten hat keine Füsse
I was taking pictures and then my battery died
2015
Garbage In, Garbage Out
Gupfinger - Nein
Topologies of Fracture
Referring to
Bezeichnen
Hilft Leichtsinn gegen Schwermut
What is an Image?
Transforming - Shopping for Identity
2014
Pascal/Descartes - Dark Matter
Frag´ Salzburg
Narrow(s)place
Urbanes Sehen
Pool
Abkapseln
Protest!
Pimp Your Shirt
Saisonale Integration III
simultan:regionalmuseen
info:simultan
2024/2025
EINE ANDERE GE/S/CH/ICHT/E
ANDERSWELT UNTERSBERG
SINGLETRACK
IM FLUSS
PUTZ
2023/2024
RAINBOW DIVISION
WENN DIE BLÜTEN BLUTEN
OFF TRACK
MOMENTUM
GOLLING: EINE COLLAGE
2022/2023
Wind, 1325
Revisited
WELLENRAUSCHEN
KUBUS
Hammerleute
ausschreibungen
kontakt
presse
aktuell
info
project:space
simultan:regionalmuseen
ausschreibungen
kontakt
presse
periscope_raumplan_details.pdf
Adobe Acrobat Dokument
65.6 KB
Download
zuklappen